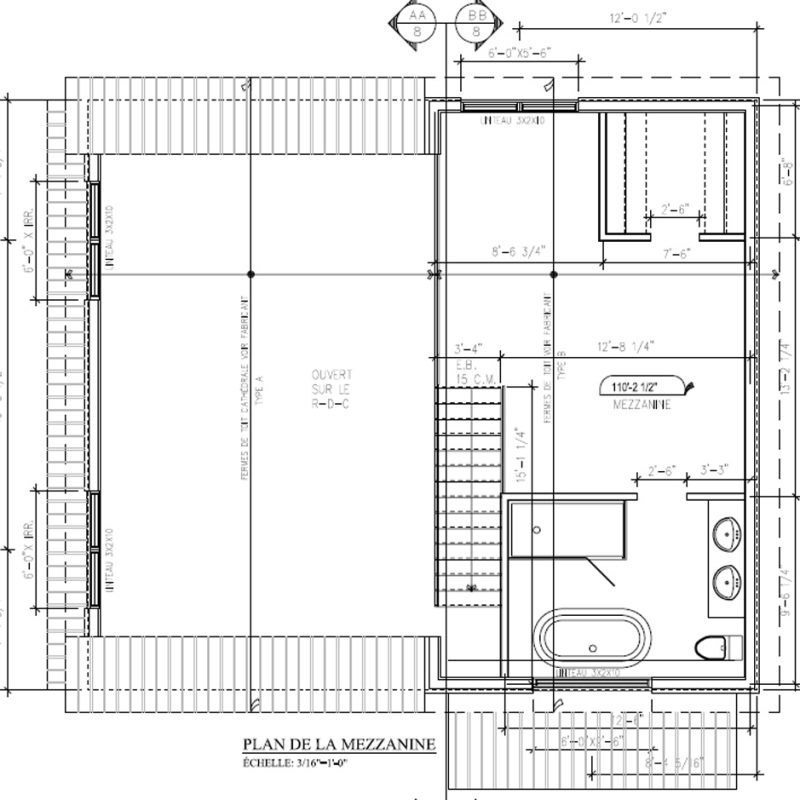
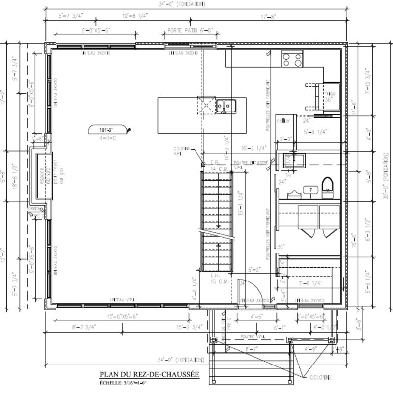
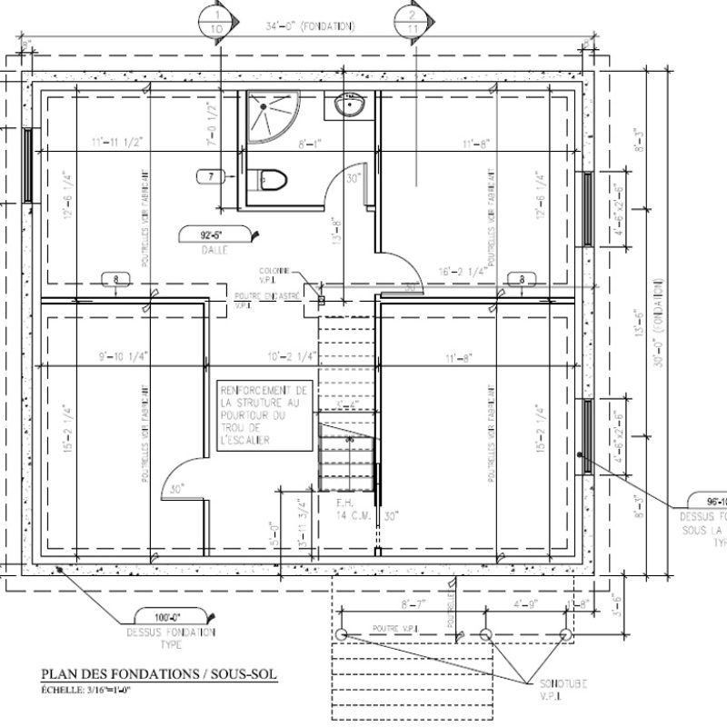
Maison #22 – Maison préfabriquée Dussault

Maison préfabriquée de

Partagez cet article!

Partagez

Facebook
LinkedIn

Autres projets similaires