#1

Maison préfabriquée Léveillé

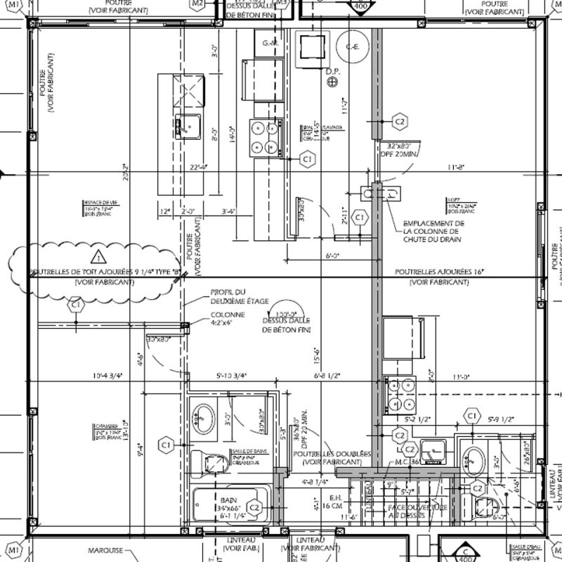
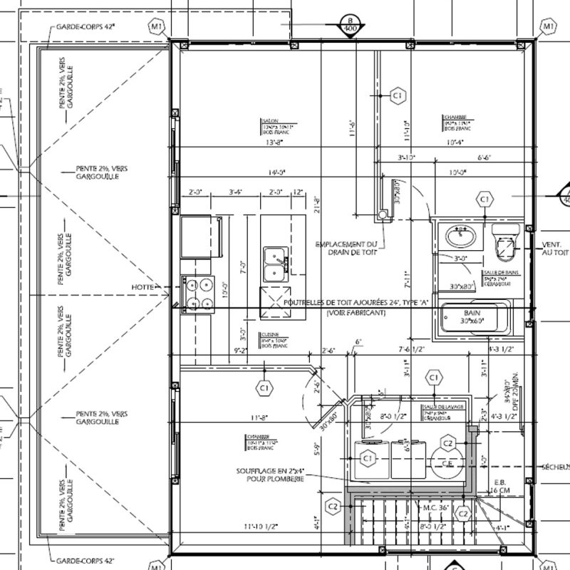
Maison préfabriquée de 34’ x 34’

Hauteur murs RDC = 9’
Hauteur murs Étage = 8’
Fermes de toit : Toit plat
Isolation Murs = R-24,5
Isolation Toit = R-40
Plancher Préfab
Étage = 34’ x 34’
Revêtement murs : Maibec
Revêtement toit : Membrane toit plat
Porte de service : 3
Porte patio : 3
Fenêtre : 19

Partagez cet article!


Modèle lié : Norvégien

Partagez

Facebook
LinkedIn

Autres projets similaires