#54

Garage préfabriqué Doyon

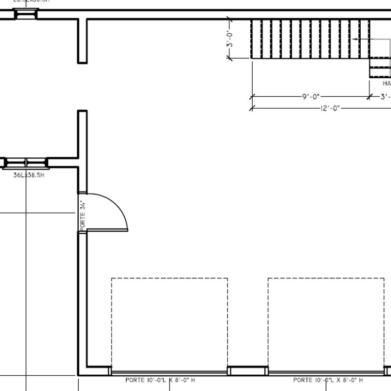
Garage préfabriqué de 26′ X 28′

Hauteur murs : 9’6″
Fermes de toit : Habitables
Pente de toit : 12/12
Étage : 13′ x 28′
Isolation : Possibilité d’isoler le bâtiment
Revêtement murs : Canexel
Revêtement toit : Tôle
Porte de service : 1
Fenêtre : 5
Porte de garage : 2 de 10’ x 8’
Autre : Abri 8’ x 28’

Partagez cet article!

Partagez

Facebook
LinkedIn

Autres projets similaires