#55

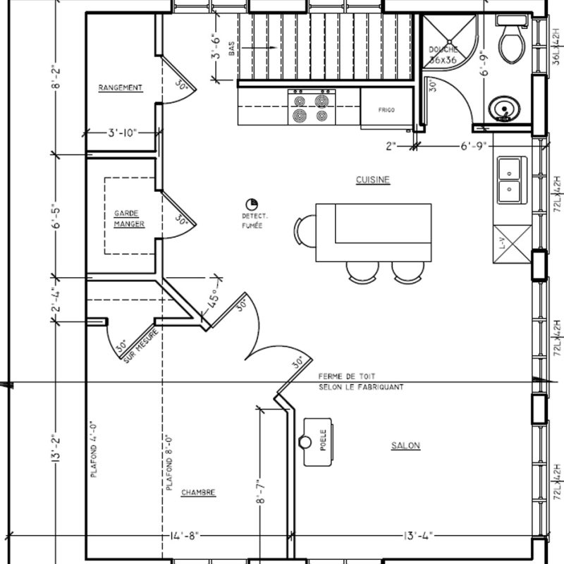
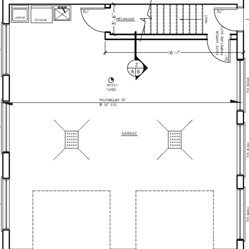
Garage préfabriqué Thomas

Garage préfabriqué de 28′ X 30′

Hauteur murs : 9′
Fermes de toit : Cathédrales
Pente de toit : 12/12
Isolation : Possibilité d’isoler le bâtiment
Plancher : 28′ x 30′
Revêtement murs : Demi-rond
Revêtement toit : Tôle
Porte de service : 1
Fenêtre : 14
Porte de garage : 2 de 9′ x 8′
Autre : Lucarne 30′ x 8’4 »

Partagez cet article!

Partagez

Facebook
LinkedIn

Autres projets similaires