Garage #63 – Garage préfabriqué Boudreault

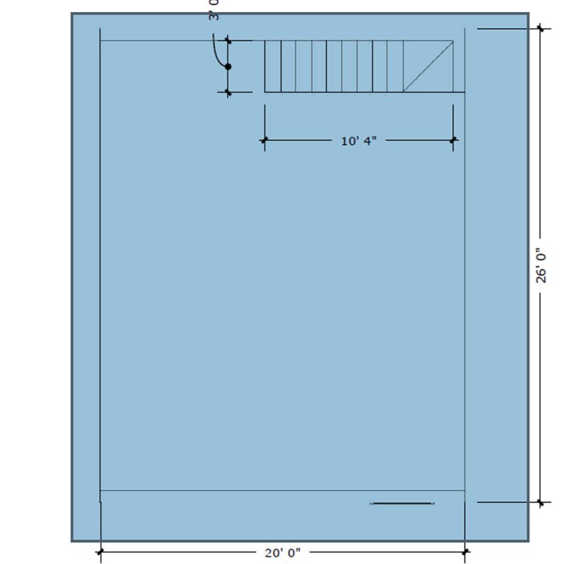
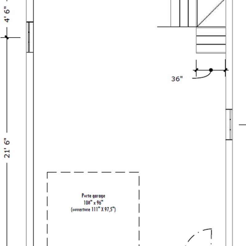
Garage préfabriqué de 22′ X 26′

Hauteur des murs : 9’
Fermes de toit : Habitables
Pente de toit : 10/12
Isolation : Possibilité d’isoler le bâtiment
Revêtement murs : Vinyle
Revêtement toit : Bardeaux
Porte de service : 1
Fenêtre : 3
Porte de garage : 1 de 9’ x 8’

Partagez cet article!

Partagez

Facebook
LinkedIn

Autres projets similaires