#21

Garage préfabriqué Costa

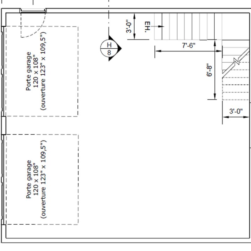
Garage préfabriqué de 26′ X 28′

Hauteur des murs : 8’
Fermes de toit : Cathédrales
Pente de toit : 12/12
Isolation : Possibilité d’isoler le bâtiment
Plancher : 26’ x 28’
Revêtement murs : Canexel
Revêtement toit : Tôle
Porte de service : 1
Fenêtre : 2
Porte de garage : 2 de 10’ x 9’

Partagez cet article!

Partagez

Facebook
LinkedIn

Autres projets similaires