#3

Garage préfabriqué Blagden

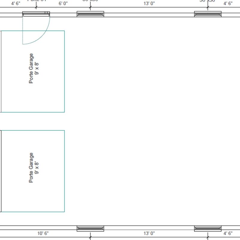
Garage préfabriqué de 24′ X 28′

Hauteur des murs : 9’
Fermes de toit : Habitables
Pente de toit : 10/12
Isolation : Possibilité d’isoler le bâtiment
Revêtement murs : Canexel
Revêtement toit : Tôle
Porte de service : 1
Fenêtre : 5
Porte de garage : 2 de 9’ x 8’

Partagez cet article!

Partagez

Facebook
LinkedIn

Autres projets similaires