#50

Garage préfabriqué Fortier

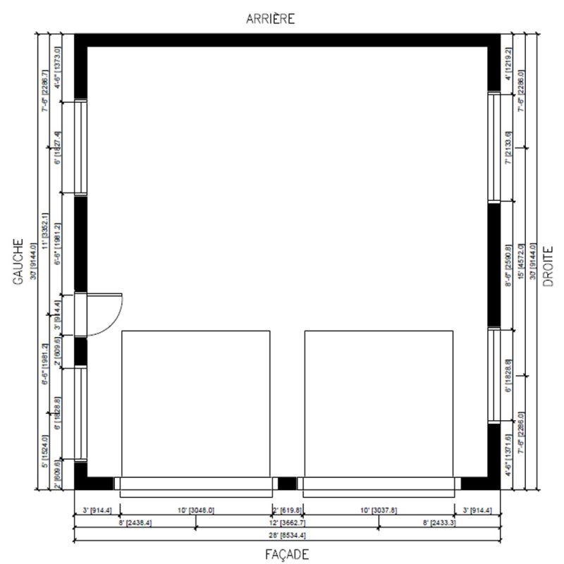
Garage préfabriqué de 28′ X 30′

Hauteur des murs : 8’ RDC + 8’ ÉTAGE
Fermes de toit : Cathédrale
Pente de toit : 10/12
Isolation : Possibilité de l’isoler
Revêtement murs : Canexel / KWP
Revêtement toit : tôle
Porte de service : 1
Fenêtre : 15
Porte de garage : 2 portes de 10×7
Plancher de poutrelles étage : 28×30

Partagez cet article!

Partagez

Facebook
LinkedIn

Autres projets similaires