#16

Garage préfabriqué Archambault

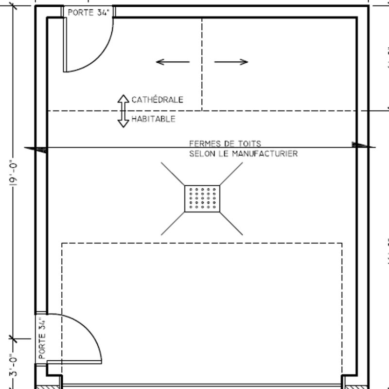
Garage préfabriqué de 19′ X 22′

Hauteur murs : 9’
Fermes de toit : Habitables
Pente de toit : 10/12
Isolation : Possibilité d’isoler le bâtiment
Revêtement murs : Canexel
Revêtement toit : Bardeaux
Porte de service : 2
Fenêtre : 2
Porte de garage : 1 de 16’ x 8’

Partagez cet article!

Partagez

Facebook
LinkedIn

Autres projets similaires