#1

Chalet préfabriqué Lemire

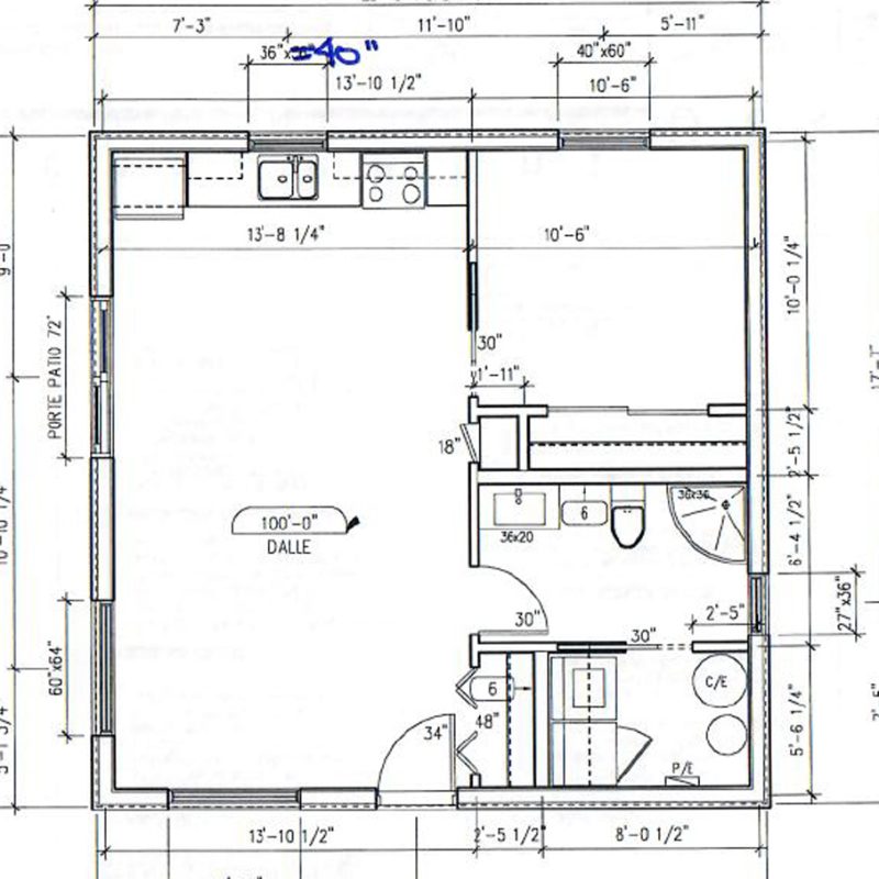
Chalet préfabriqué de 25’ x 25’

Hauteur murs : 9’
Fermes de toit : Réguliers
Pente de toit : 8/12
Isolation Murs = R-24,5
Isolation Toit = R-40
Revêtement murs : Vinyle
Revêtement toit : Tôle
Porte de service : 1
Porte-patio : 1
Fenêtre : 5

Partagez cet article!

Partagez

Facebook
LinkedIn

Autres projets similaires