#25

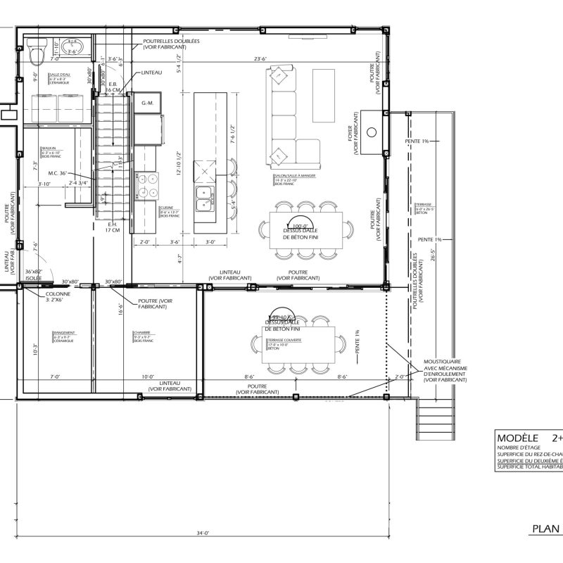
Maison/Chalet préfabriqué St-Antoine (Scandinave Norvégien)

Maison/chalet préfabriqué de 34’ x 34’

Hauteur murs RDC = 9’
Hauteur murs Étage = 8’
Fermes de toit : Réguliers
Pente de toit : 8/12 et 4/12 galerie
Isolation Murs = R-24,5
Isolation Toit = R-40
Plancher Préfab
RDC = 34’ x 34’
MEZZ = 34’ x 34’
Revêtement murs : Tôle
Revêtement toit : Tôle
Porte de service : 1
Porte-patio : 3
Fenêtre : 16

Partagez cet article!


Modèle lié : Norvégien

Partagez

Facebook
LinkedIn

Autres projets similaires