#30

Maison/Chalet préfabriqué Tremblay 2

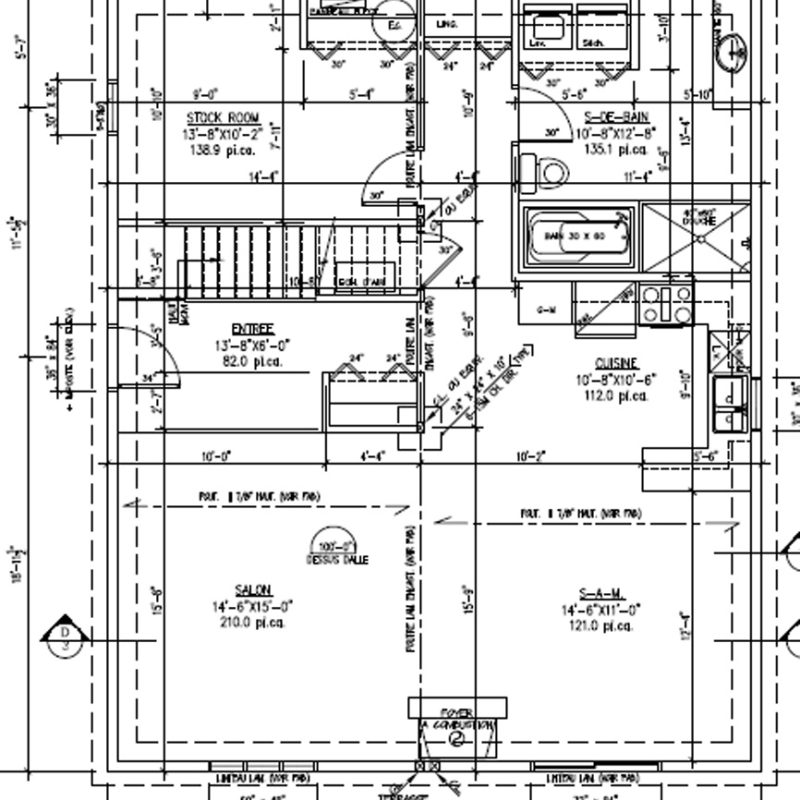
Maison/chalet préfabriqué de 30’ x 36’

Hauteur murs : 9’
Fermes de toit : Cathédrales
Pente de toit : 10/12
Isolation Murs = R-24,5
Isolation Toit = R-40
Plancher Préfab
Étage = 30’ x 36’
Revêtement murs : Canexel
Revêtement toit : Bardeau
Porte de service : 1
Porte-patio : 1
Fenêtre : 6

Partagez cet article!

Partagez

Facebook
LinkedIn

Autres projets similaires