#23

Maison/Chalet préfabriqué Lavoie

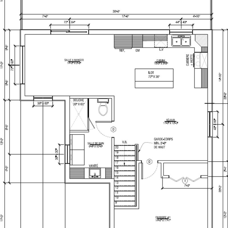
Maison/chalet préfabriqué de 30’ x 35’

Hauteur murs RDC = 12’
Hauteur murs Étage = 8’
Fermes de toit : Réguliers
Pente de toit : 6/12
Isolation Murs = R-24,5
Isolation Toit = R-40
Plancher Préfab
Étage = 30’ x 35’
Revêtement murs : Canexel
Revêtement toit : Bardeau
Porte de service : 3
Porte-patio : 1
Fenêtre : 3

Partagez cet article!

Partagez

Facebook
LinkedIn

Autres projets similaires