#32

Maison/chalet préfabriqué Dussault

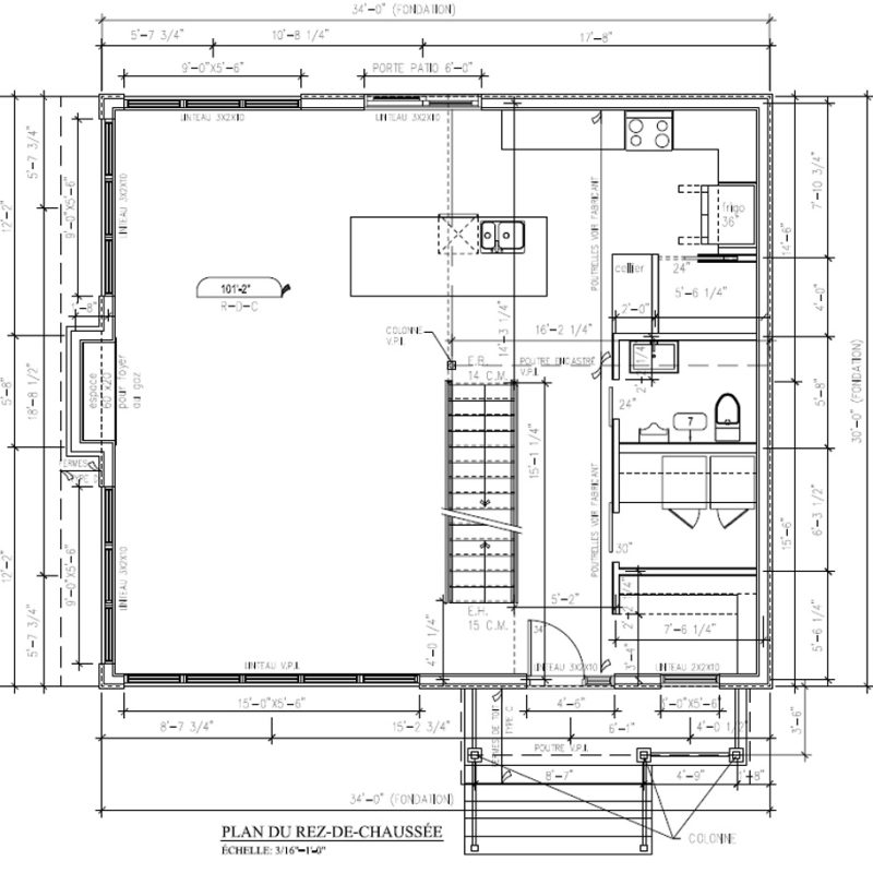
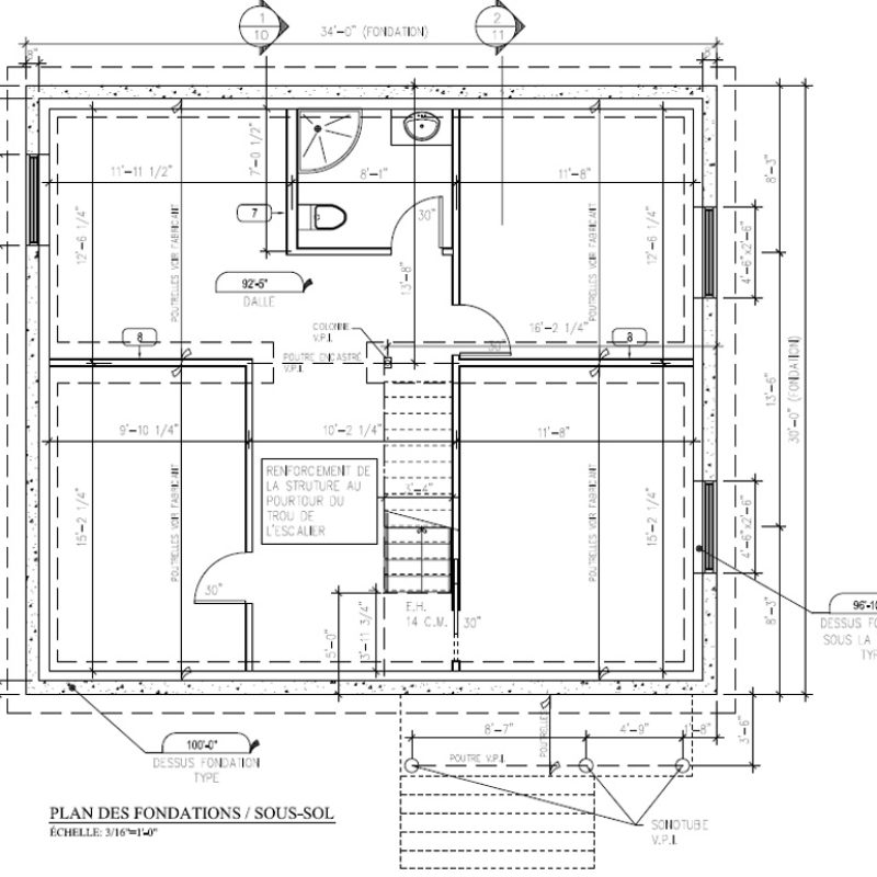
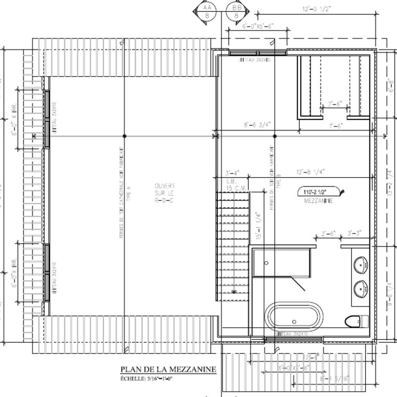
Maison/chalet préfabriqué de 30’ x 34’

Hauteur murs RDC = 9’
Hauteur murs Étage = 8’
Fermes de toit : Cathédrales
Pente de toit : 12/12
Isolation Murs = R-24,5
Isolation Toit = R-40
Plancher Préfab
RDC = 30’ x 34’
MEZZ = 30’ x 16’
Revêtement murs : Diamond Kote
Revêtement toit : Tôle
Porte de service : 1
Porte-patio : 1
Fenêtre : 21

Partagez cet article!

Partagez

Facebook
LinkedIn

Autres projets similaires