#26

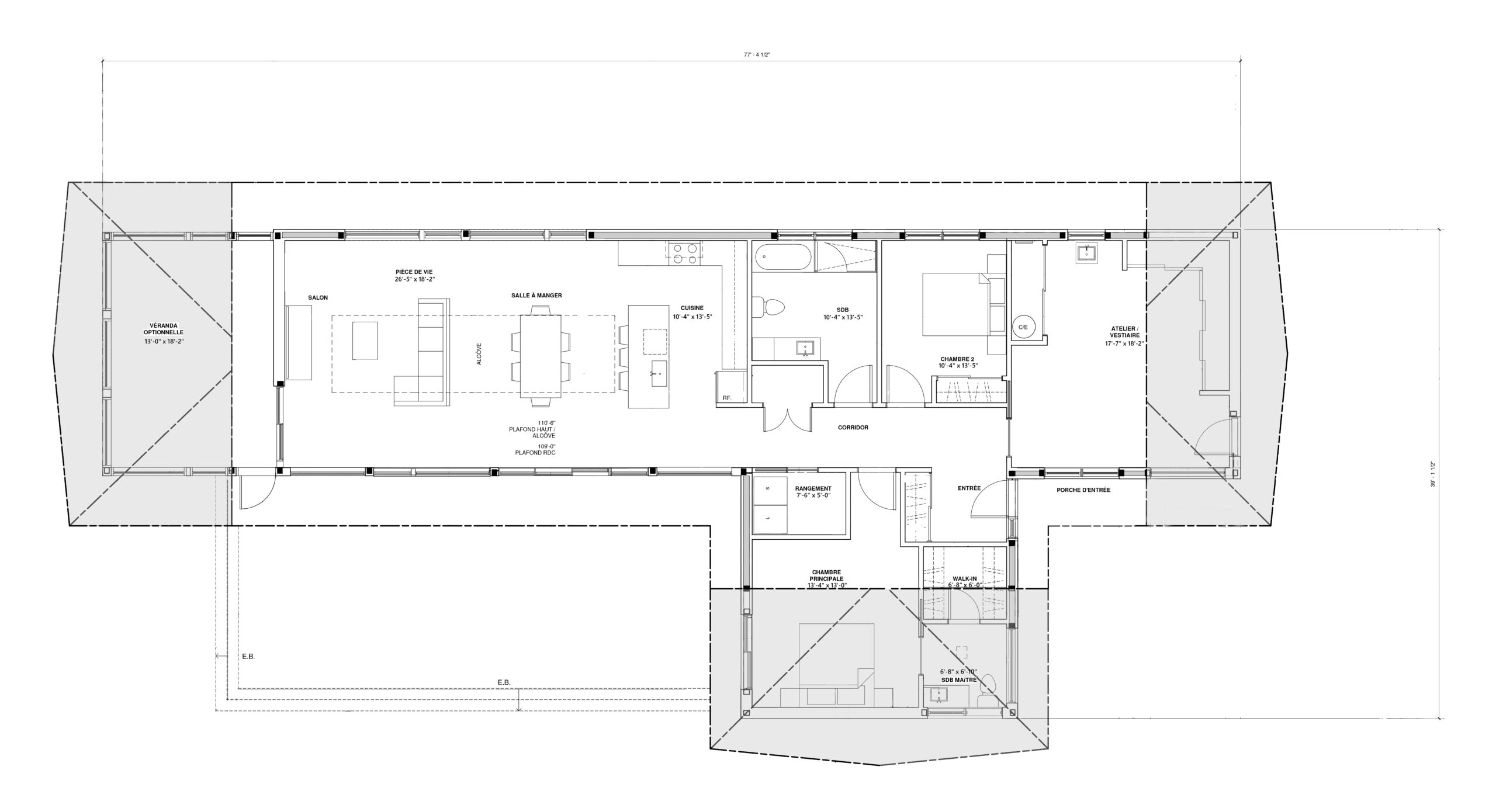
Maison préfabriquée ou chalet préfabriqué Desjardins (Abri 1850-BV)

Maison préfabriqué écoénergétique de 39’-1 » x 77’-4 »

Hauteur murs RDC = 9’
Fermes de toit : Réguliers
Pente de toit : 4/12
Isolation Murs = R-36,2
Isolation Toit = R-66
Véranda : 13′ x 18′-2 »
Revêtement murs : Maibec
Revêtement toit : Tôle
Porte de service : 3
Porte-patio : 3
Fenêtre : 22

Partagez cet article!


Modèle lié : Abri 1850-BV

Partagez

Facebook
LinkedIn

Autres projets similaires