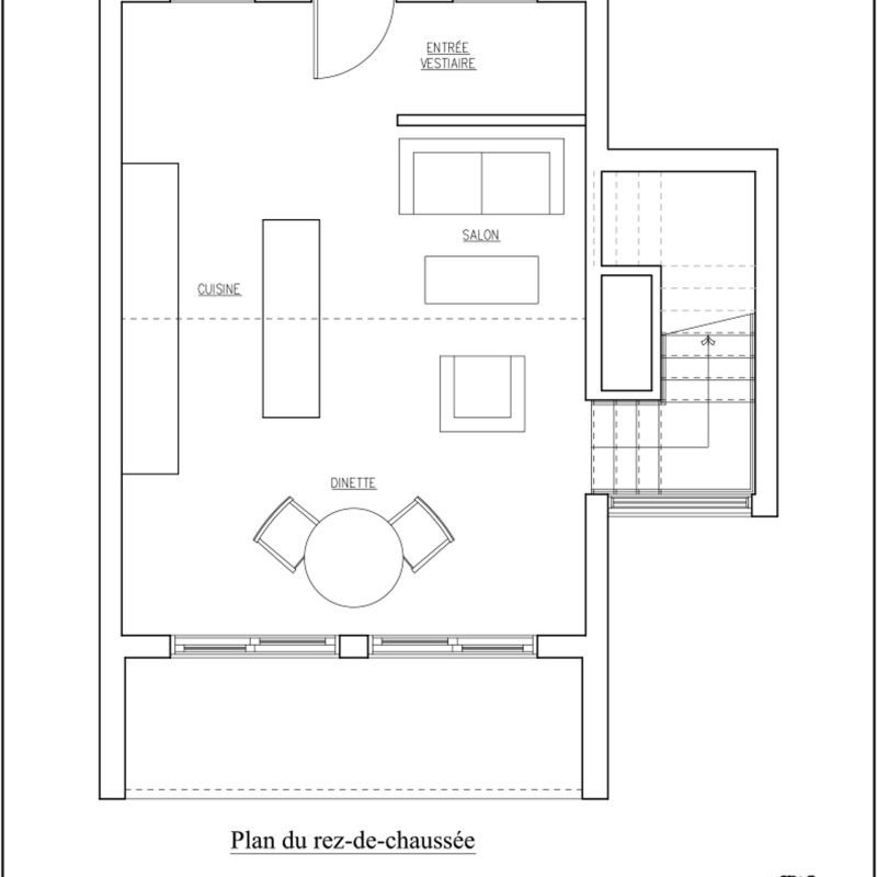
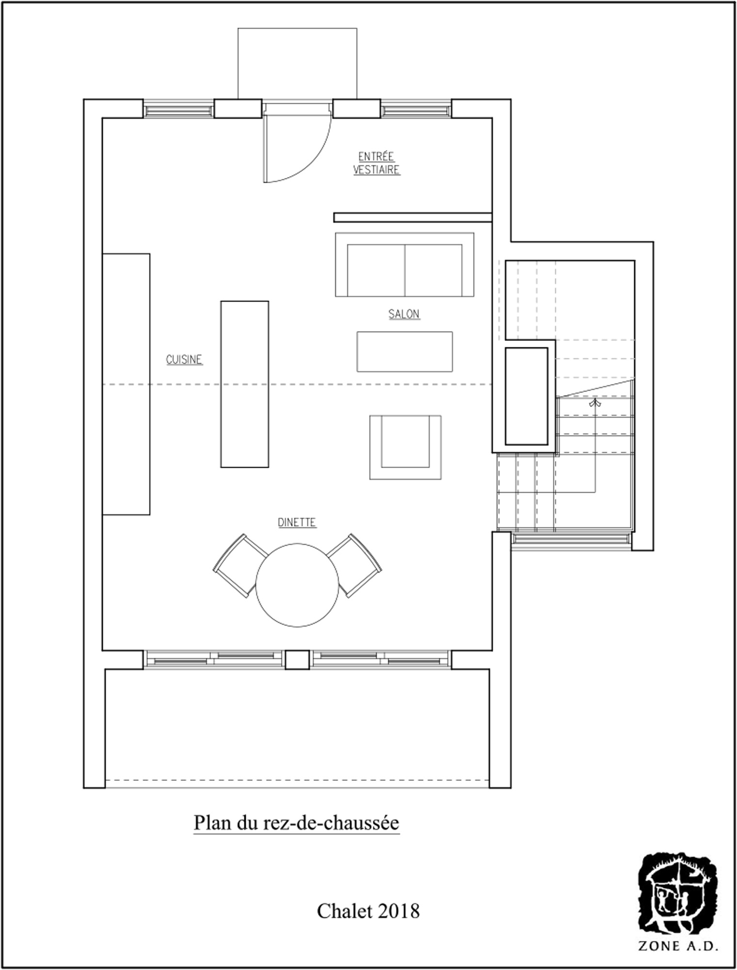
#31

Maison/Chalet Shack contemporain

SHACK CONTEMPORAIN de 18′ x 24′

Hauteur murs : 9’
Fermes de toit : Cathédrales
Pente de toit : 10/12
Isolation des murs : R-24,5
Isolation du toit : R-40
Poutrelles : Étage = 18’ x 12’
Revêtement murs : KWP
Revêtement toit : Tôle
Porte de service : 1
Fenêtres : 15
Porte-patio : 2
Autre : Cage d’escaliers 6’ x 13’

Partagez cet article!

Partagez

Facebook
LinkedIn

Autres projets similaires