Otimo

Petite maison

636 pi.ca.

superficie habitable

1

étages

2

chambres

1

salles de bain

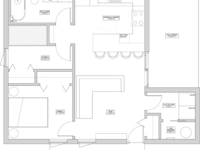
La petite maison Otimo offre enfin la possibilité aux jeunes et moins jeunes de posséder leur propre maison, à un prix abordable. Ce tour de force fut réalisable par l’utilisation de matériaux simples, mais durables et d’une fenestration plus standard, quoique abondante. L’Otimo saura vous charmer par son aire de vie tout en hauteur, par ses espaces chaleureux et harmonieux.

En photos

Vous aimeriez avoir le modèle Otimo un peu plus grand? Lui ajouter un sous-sol ou une chambre? Tout est possible! Nous ajusterons les plans à vos besoins et à votre budget.

Caractéristiques

  • Type : Petite maison
  • Dimensions : 26 pi x 32 pi et 6 po
  • Superficie habitable : 636 pi2
  • Étages : 1
  • Chambres : 2
  • Salle de bain : 1

Autres modèles similaires