Abri 550-BV1
Petit espace, grande vie!
488 pi.ca.
superficie habitable
1
étages
1
chambres
1
salles de bain
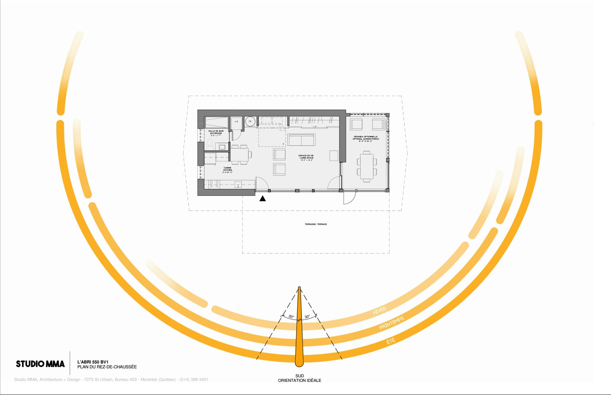
L’Abri 550-BV est la maison parfaite pour ceux et celles qui recherchent un petit espace de vie de style loft sans compromettre leur bien-être. Avec ses grandes surfaces vitrées et une terrasse intime en option, cette petite maison fait une grande place à la lumière et à la vue extérieure.
Conçue pour dalle de béton. Voir l’Abri 750-BV, l’Abri 1100-SV, l’Abri 1400-SV ou l’Abri 1850-BV pour des options plain-pied ou rez-de-jardin.
Véritable concentré de talents, elle est le fruit d’une collaboration inédite entre la firme d’architecture Studio MMA et le manufacturier de structures préfabriquées en kits, Bâtiment Pré-Fab inc
Caractéristiques
- Type : Petite maison de style loft
- Dimensions : 19 pi x 32 pi
- Véranda (option) : 18 pi x 10 pi (BV1) et 15 pi x 10 pi (BV2)
- Superficie habitable : 488 pi2
- Étages : 1
- Chambres : 1 aire ouverte
- Consommation totale : 6 767 kWh/an
- Coût énergétique : 634 $ /an*
- Cote ISP : 57 kWh/m² par année
- Certification visée : LEED® Platine – Novoclimat





