1342 pi.ca.
superficie habitable
2
étages
2
chambres
2
salles de bain
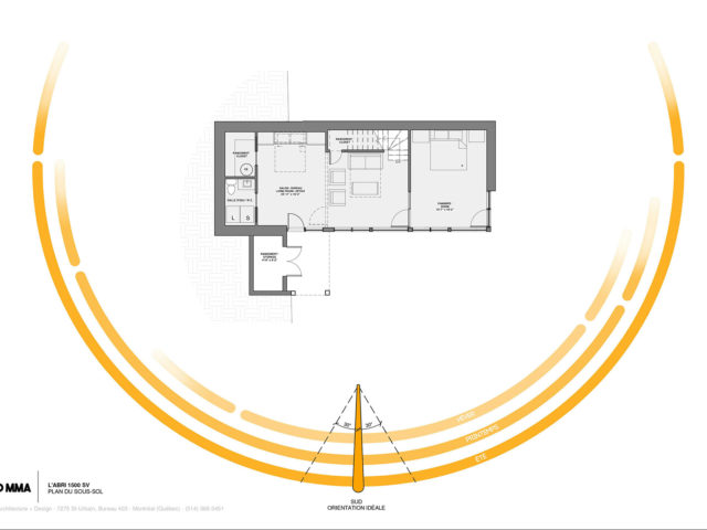
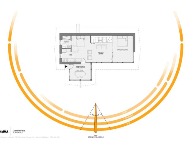
L’Abri 1500-SV est une spacieuse maison avec ses trois chambres et deux espaces de vie. Parfaitement adaptée aux familles qui ont besoin d’espace bien pensé et divisé, ce modèle en rez-de-jardin peut se transformer en sous-sol. Avec sa terrasse intime en option et ses grandes surfaces vitrées, cette maison unifamiliale laisse entrer beaucoup de lumière naturelle et prend pleinement avantage d’un terrain en pente.
Voir l’Abri 550-BV, l’Abri 750-BV, l’Abri 1100-SV, l’Abri 1400-SV ou l’Abri 1850-BV pour des options plain-pied ou rez-de-jardin.
Véritable concentré de talents, elle est le fruit d’une collaboration inédite entre la firme d’architecture Studio MMA et le manufacturier de structures préfabriquées en kits, Bâtiment Pré-Fab inc.
Caractéristiques
- Type : Unifamiliale
- Dimensions : 18 pi x 45 pi
- Superficie habitable : 1 342 pi2
- Étages : 2
- Chambres : 2 + 2 à aire ouverte
- Consommation totale* : 11 425 kWh/an
- Coût énergétique* : 988 $/an
- Cote ISP* : 29 kWh/m2 par année
- Certification visée : LEED® Or – Novoclimat








