1265 pi.ca.
superficie habitable
1
étages
2
chambres
1
salles de bain
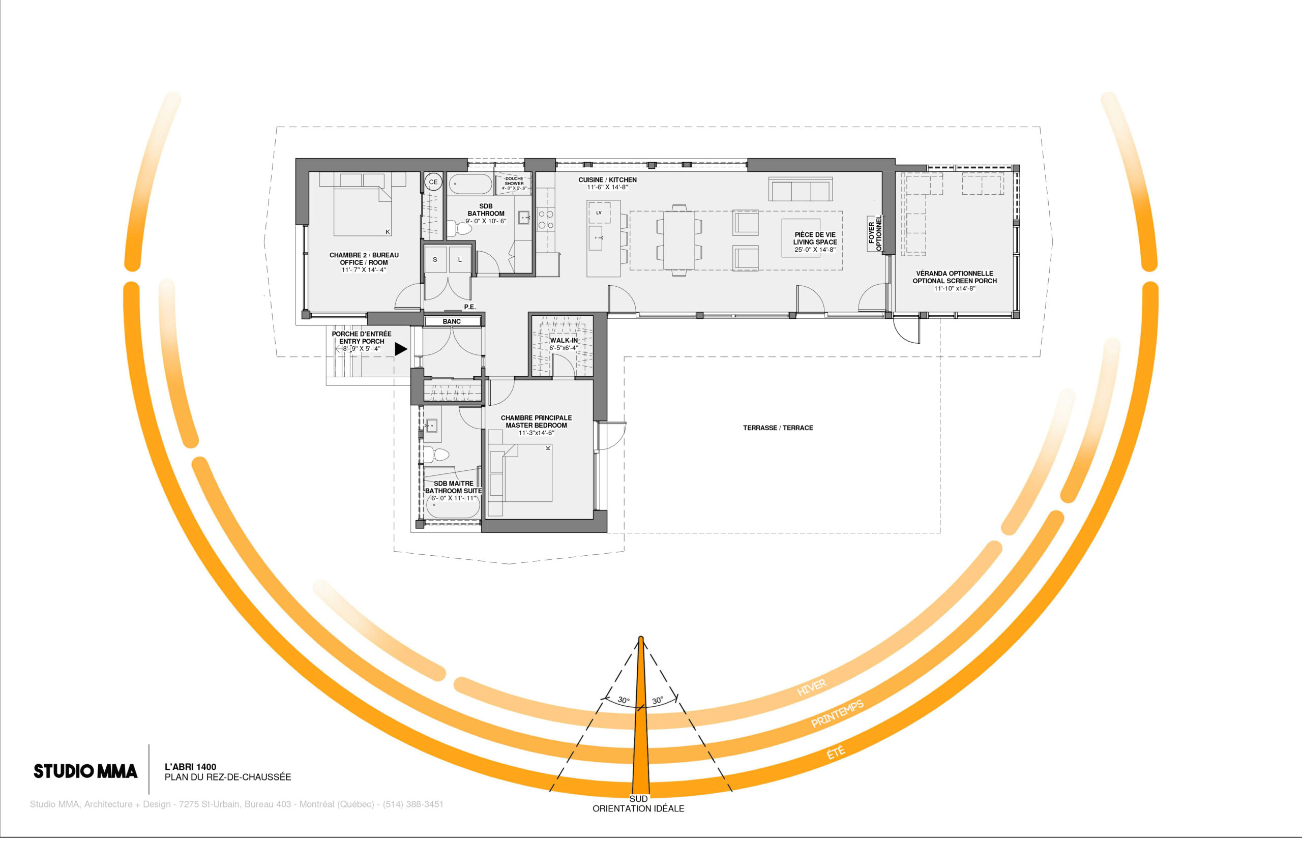
Avec sa grande aire de vie lumineuse donnant sur la cour, l’Abri 1400-SV est la parfaite maison plain-pied pour la famille de taille moyenne. Bien qu’un peu plus petite que sa grande sœur l’Abri-1850, ce modèle ultra bien pensé offre deux chambres, deux salles de bains et plusieurs espaces pour du rangement. Une terrasse intime à l’abri des vents et de la vue est enveloppée par la chambre principale et par une aire de vie généreuse et ouverte au parcours du soleil.
Conçue pour dalle de béton. Voir l’Abri 550-BV, l’Abri 750-BV, l’Abri 1100-SV, l’Abri 1500-SV ou l’Abri 1850-BV pour des options plain-pied ou rez-de-jardin.
Véritable concentré de talents, elle est le fruit d’une collaboration inédite entre la firme d’architecture Studio MMA et le manufacturier de structures préfabriquées en kits, Bâtiment Pré-Fab inc.
Caractéristiques
- Type : Unifamiliale
- Dimensions : 39 pi x 63 pi
- Superficie habitable : 1 265 pi2
- Étages : 1
- Chambres : 2
- Consommation totale* : 10 165 kWh/an
- Coût énergétique* : 886 $/an
- Cote ISP* : 27 kWh/m2 par année
- Certification visée : LEED® Or – Novoclimat





